上高井郡小布施町小布施横町 中古一戸建て住宅
《上高井郡小布施町・中古》栗ガ丘小・小布施中エリア☆小布施駅まで徒歩7分!2021年築の築浅中古住宅◎太陽光発電システムやEV車充電設備などが搭載されております☆全居室収納スペース確保◎
-
住所
- 長野県上高井郡小布施町小布施
-
アクセス
- 長野電鉄長野線 小布施駅 から 徒歩7分
-
価格
- 4380万 円
-
間取り
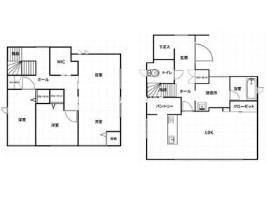
- 3LDK
-
土地面積
- 293.38m 2 ( 88.74坪 )
-
建物面積
- 114.5m 2 ( 34.63坪 )
-
築年月
- 2021年04月 ( 築4年 )
間取り図
詳細・設備・条件・取引について
基本
| 問い合わせ番号 | nagano_4_1063 | ||
|---|---|---|---|
| アクセス | 長野電鉄長野線 小布施駅 から 徒歩7分 | 種別 | 一戸建て |
| 所在地 | 長野県上高井郡小布施町小布施 | 学校区 | ☆小布施 |
| 問い合わせ番号 | nagano_4_1063 |
|---|---|
| アクセス | 長野電鉄長野線 小布施駅 から 徒歩7分 |
| 種別 | 一戸建て |
| 所在地 | 長野県上高井郡小布施町小布施 |
| 学校区 | ☆小布施 |
費用
| 価格 | 4380万円 | 公庫・融資 | - |
|---|---|---|---|
| 借地期間 | -年 | 地代 | -円 |
| 駐車場 | - | バイク置場 | - |
| 駐輪場 | - |
| 価格 | 4380万円 |
|---|---|
| 公庫・融資 | - |
| 借地期間 | -年 |
| 地代 | -円 |
| 駐車場 | - |
| バイク置場 | - |
| 駐輪場 | - |
土地
| 土地権利 | 所有権 | 土地持分 | - |
|---|---|---|---|
| 土地面積 (公簿) | 293.38m 2 ( 88.74坪 ) | 土地面積 (実測) | - |
| 私道負担面積 | - | 私道負担割合 | - |
| セットバック | - | 接道 |
北 公道6.4m (接2m)
|
| 建蔽率 | 60% | 容積率 | 200% |
| 地目 | 宅地 | 地勢 | 平坦 |
| 都市計画 | 市街化区域 | 用途地域 | 第一種住居 |
| 防火 | - | 高度地区 | - |
| 国土法届出 | - | その他法令上の制限 | - |
| 土地権利 | 所有権 |
|---|---|
| 土地持分 | - |
| 土地面積 (公簿) | 293.38m 2 ( 88.74坪 ) |
| 土地面積 (実測) | - |
| 私道負担面積 | - |
| 私道負担割合 | - |
| セットバック | - |
| 接道 |
北 公道6.4m (接2m)
|
| 建蔽率 | 60% |
| 容積率 | 200% |
| 地目 | 宅地 |
| 地勢 | 平坦 |
| 都市計画 | 市街化区域 |
| 用途地域 | 第一種住居 |
| 防火 | - |
| 高度地区 | - |
| 国土法届出 | - |
| その他法令上の制限 | - |
建物
| 構造 | 軽量鉄骨造 | 完成年月 | 2021年04月 ( 築4年 ) |
|---|---|---|---|
| 建築面積 | - | 敷地面積 | - |
| 建物面積 | 114.5m 2 ( 34.63坪 ) | 階建 | 2階建 |
| 間取り | 3LDK | バルコニー面積 | - |
| リフォーム | - | リノベーション | - |
| 施工会社名 | - | 建築確認番号 | - |
| こだわり条件 |
|
||
| 設備・条件 | 【備考】 ◆現況有姿売買になります |
||
| 構造 | 軽量鉄骨造 | ||
|---|---|---|---|
| 完成年月 | 2021年04月 ( 築4年 ) | ||
| 建築面積 | - | ||
| 敷地面積 | - | ||
| 建物面積 | 114.5m 2 ( 34.63坪 ) | ||
| 階建 | 2階建 | ||
| 間取り | 3LDK | ||
| バルコニー面積 | - | ||
| リフォーム | - | ||
| リノベーション | - | ||
| 施工会社名 | - | ||
| 建築確認番号 | - | ||
| こだわり条件 | 下水道/日当たり良好/閑静な住宅街/システムキッチン/対面キッチン/浄水器/食器洗浄乾燥機/バス・トイレ別/追い焚き/バス1坪以上/洗面化粧台独立/温水洗浄便座/浴室乾燥機/エアコン/床下収納/ウォークインクローゼット/シューズインクローゼット/TVドアホン付き/複層ガラス・防犯ガラス/庭/フローリング/照明器具・家電付き/電気/2面採光/敷地70坪以上 | ||
| 設備・条件 | 【備考】 ◆現況有姿売買になります |
||
その他
| 現況 ・ 入居 | 空家 ・ 相談 | 取引態様 | 仲介 |
|---|---|---|---|
| 次回更新日 | 2026/03/10 | 担当者 | 國吉 大雅 |
| 現況 ・ 入居 | 空家 ・ 相談 |
|---|---|
| 取引態様 | 仲介 |
| 次回更新日 | 2026/03/10 |
| 担当者 | 國吉 大雅 |
こちらの物件もあります。
2499万 円
長野県上田市上塩尻
西上田駅から徒歩 17分
2280万 円
長野県千曲市杭瀬下
屋代駅から徒歩 13分
3720万 円
長野県長野市下駒沢
三才駅から徒歩 21分
2250万 円
長野県中野市西条
信州中野駅から徒歩 20分
2580万 円
長野県長野市丹波島
川中島駅から徒歩 27分
3400万 円
長野県千曲市寂蒔
千曲駅から徒歩 16分
2980万 円
長野県須坂市日滝
須坂駅から徒歩 19分
2880万 円
長野県長野市上松
本郷駅から徒歩 31分
4430万 円
長野県長野市東和田
3680万 円
長野県長野市上駒沢
三才駅から徒歩 9分
3400万 円
長野県千曲市内川
千曲駅から徒歩 10分
2200万 円
長野県長野市浅川
信濃吉田駅から徒歩 42分
2598万 円
長野県長野市三輪
桐原駅から徒歩 7分
2490万 円
長野県上田市下之条
上田原駅から徒歩 18分
1299万 円
長野県中野市三ツ和
桜沢駅から徒歩 9分



上高井郡小布施町小布施横町 中古一戸建て住宅の詳しい情報やお問い合わせはこちら!
お問い合わせ先:ララハウス 長野支店
免許番号:(1)第9970号
営業時間:9:00~19:00 定休:水曜日(祝日は除く)
TEL:0120-70-3373