お問い合わせ候補一覧
- 住所
- 長野県上高井郡高山村中山
- アクセス
- 駅
- 価格 1,980.0万円
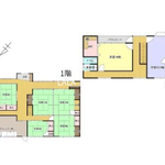
- 間取り 7DK
- 土地面積: 1,140.04m 2 ( 344.86坪 )
- 建物面積: 228.1m 2 ( 69坪 )
- 完成年月: 1995年01月
お問い合わせフォーム
下記のフォームに必要項目、お問い合わせ内容を入力後、プライバシーポリシーをご確認ご同意のうえ送信ボタンを押して下さい。



